Опис Oli Quadra Plus 885060/135974
Для обмеженого простору Oli має рішення
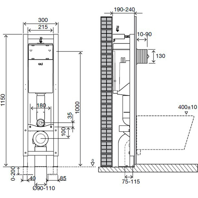
Інсталяція QUADRA PLUS Sanitarblock може бути встановлена у кут, що є ідеальним рішенням для маленьких ванних кімнат. По суті, вона стане практично скрізь завдяки своїй зменшеній ширині 300 мм. Система встановлення інсталяції підходить для застосування з гіпсокартоном та несучою стіною. Головна перевага системи – легкість та швидкість безпечної установки бачка з підвісним унітазом.
Ключові особливості:
- Сумісність із підвісними унітазами
- Відстань між кріпленнями 180 мм
- Монтаж до несучих або стін з гіпсокартону
- Рама випробувана навантаженням 400 кг.
- Просте та швидке встановлення за допомогою системи Fast-Fit
- Регульоване по глибині фанове відведення
- Регулювання за висотою від 0 до 200 мм
- Ширина 300 мм
- Товщина конструкції 187 мм.
У комплекті:
- труба для промивання 315 мм
- запірний клапан G ½"
- труба для підключення унітазу Ø45
Відгуки на Oli Quadra Plus 885060/135974 від реальних покупців
Немає відгуків
Характеристики
- Quadra Plus
- метал
- пластик ABS
- верхній
- інсталяція
- бачок
- кріплення до стіни
- патрубки
