Опис Oli OLI120 PLUS 880780
Якість нового рівня
Сучасні технології OLI гарантують не тільки просте та швидке встановлення, а також ідеальне обслуговування. Ноу-хау, продумане до найдрібніших деталей, і робить інсталяції OLI еталоном на ринку, а також відгуки професіоналів і кінцевих користувачів, що вказують на сильні сторони, які вони хотіли б об'єднати в одному продукті, створили тандем ідей, завдяки якому народився OLI120 Plus.
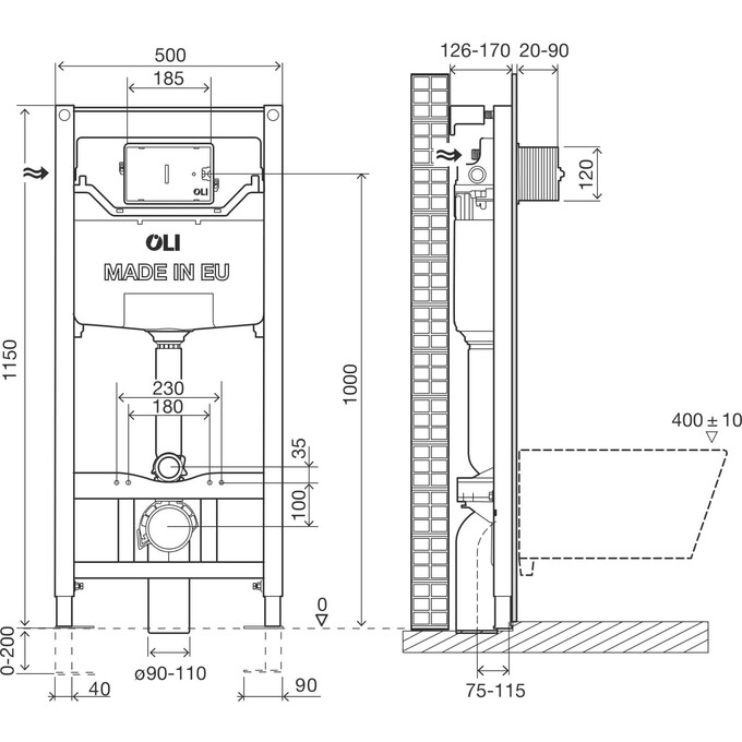
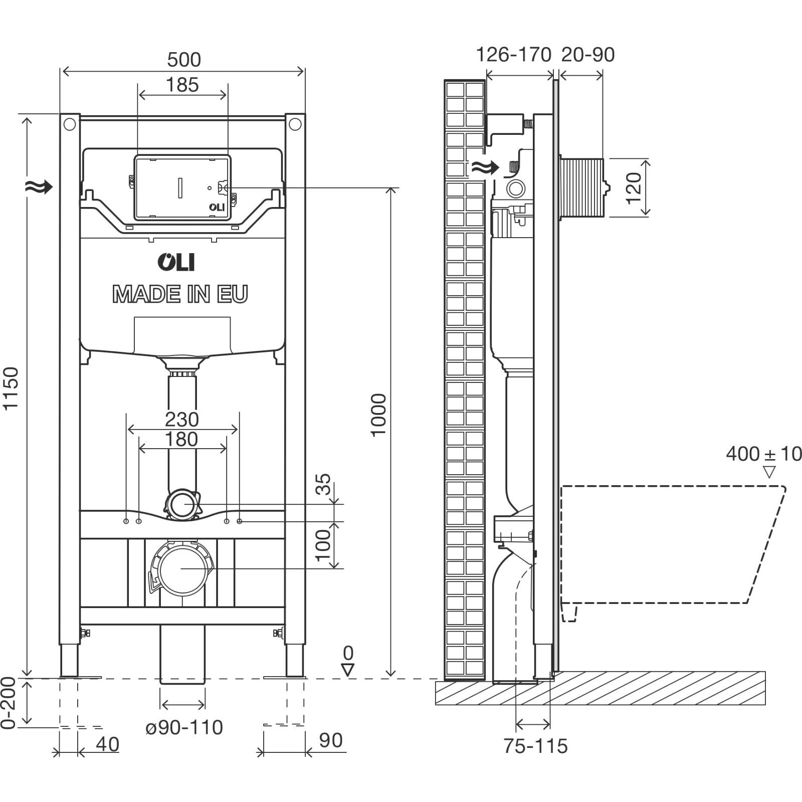
Інсталяція Oli 120 Plus Sanitarblock кріпиться до стіни та підлоги і підходить для встановлення підвісних унітазів усередині легких стін та цегляних стін. Ця система відрізняється міцністю та простотою у застосуванні. Завдяки новій системі авторегулювання, яка дозволяє швидко виставити раму на потрібний рівень, монтаж інсталяції може бути зроблений однією людиною. Фіксуючі ніжки мають 3 положення та металеве блокування для фіксування в необхідному положенні. Кріпильні ніжки забезпечені хрестоподібним свердлом для збільшення ширини отворів та полегшення установки.
OLIpure – це автономна система, всі елементи якої знаходяться усередині зливного бачка. При кожному змиванні дезінфікуючий засіб подається в унітаз у контрольному дозуванні (2мл). Це знижує ризик пошкодження дезінфікуючим засобом компонентів бачка. Вона сумісна з наявними рідкими дезінфікуючими засобами для унітазів, представленими на ринку, та має ємність 450 мл.
Ключові особливості:
- Вбудована система OLIpure
- Сумісна з усіма видами підвісних унітазів
- Підходить для легких та несучих стін
- Рама випробувана навантаженням 400 кг.
- Фанове відведення для зливу, регульоване по глибині
- Легкість та швидкість установки (система Fast Fit)
- Регулюється за висотою від 0 до 200 мм.
- Tовщина конструкції 126 мм
У комплекті:
- Кріпильні елементи для унітазу
- Кріпильні елементи для рами
- Комплект сполучних патрубків для унітазу
- Фановий відвід для зливу та перехідник Ø90/110
- G1/2" запірний клапан
Відгуки на Oli OLI120 PLUS 880780 від реальних покупців
Немає відгуків
Характеристики
- OLI120 PLUS
- метал
- пластик ABS
- бічний
- позаду
- інсталяція
- бачок
- кріплення до стіни
- патрубки
- резервуар
