Описание Grohe Rapid SL 388400WG
GROHE - ведущий мировой бренд комплексных решений для ванных комнат и кухонного оборудования. Как международный бренд, GROHE следует ценностям бренда, связанным с технологиями, качеством, дизайном и экологичностью, стремясь предложить «Чистое удовольствие от воды». Компания с момента своего создания разрабатывает новые категории продуктов. Инновации, дизайн и разработка тесно связаны друг с другом и закреплены на немецком предприятии как единый процесс. В результате продукция GROHE отмечена знаком качества «Сделано в Германии».
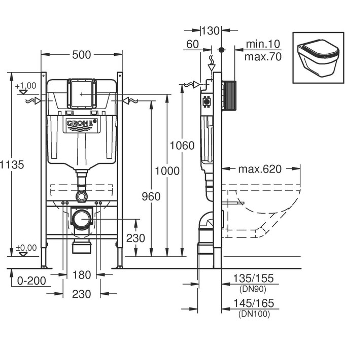
Особенности системы инсталляции для унитаза Grohe Rapid SL 38840000 и крепления 3855800M (388400WG)
- для настенного монтажа или обшитых стен
- стальная рама с порошковым покрытием, самонесущая
- для сухой облицовки
- с фиксированными соединениями
- быстрая регулировка, блокировка
- крепежный материал
- 2 крепежных болта для унитаза
- крепежное устройство для керамики
- расстояние крепежных болтов 180/230 мм
- выходной изгиб D 90 мм
- регулировка глубины
- редуктор D 90 на 110 мм
- входной и выходной соединительный набор
- смывной бак GD 2, 6 - 9 л
- регулировка на заводе 6 л и 3 л
- пневматический выпускной клапан, предлагающий 3 режима
- работа: двойная промывка или старт/стоп или однократная промывка
- водоснабжение слева либо справа либо сзади или сверху
- низкий уровень шума (группа I соответствует немецкой спецификации шума)
- изолированный от конденсации
- полдюймовые подводы водоснабжения, включая интегрированные угловой клапан и гибкий шланг
- комплектуется креплениями 3855800M (для крепления элементов к капитальной стене или перед стеной-перегородкой)
Отзывы о Grohe Rapid SL 388400WG от реальных покупателей
Отзывы не найдены
Характеристики
- Rapid SL
- металл
- пластик ABS
- боковой
- верхний
- сзади
- GROHE Water Saving®
- GROHE QuickFix®
- GROHE Whisper®
- инсталляция
- крепеж к стене
